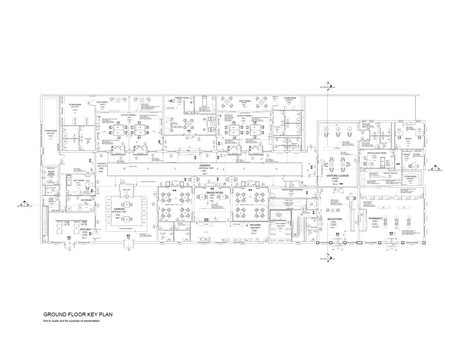
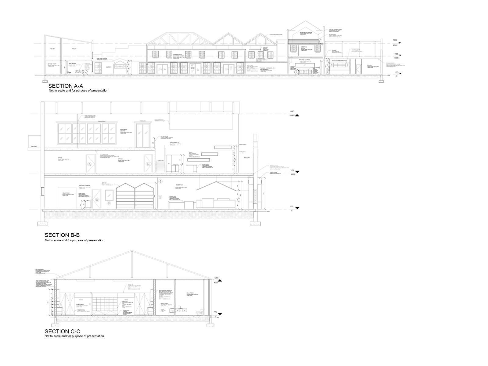
The Memory Care Centre is a nine month research concept aimed to be a place where elderly people suffering from dementia are able to go to during the day helping to aid in the reduction of the following behavioral issues: depression, anxiety and aggression. Many people living with dementia are often burdens to their families who have to take a great deal of time out of their days to care for these people. Many families are often ill equipped and are not able to care for their loved ones with dementia 24 hours a day and end up putting them into assisted living facilities or old age homes, which often do not cater for their specific needs.